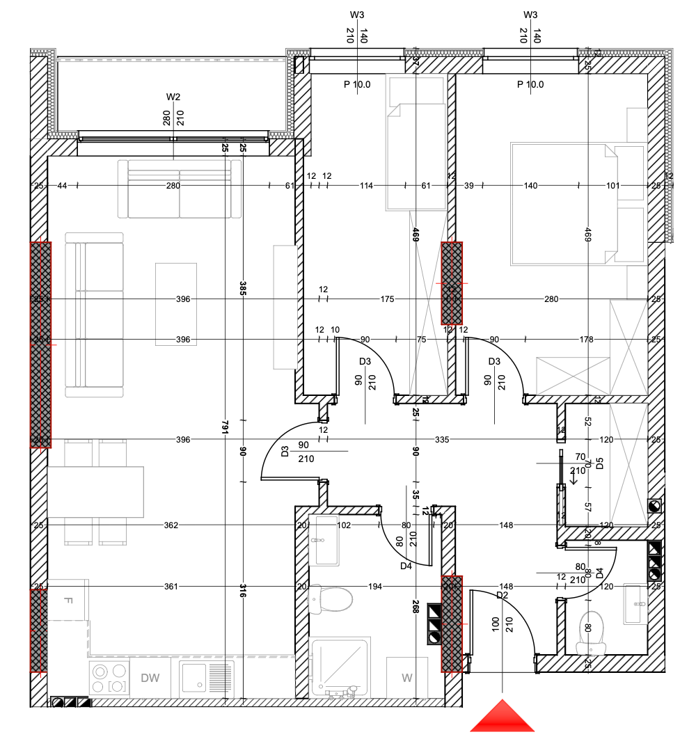
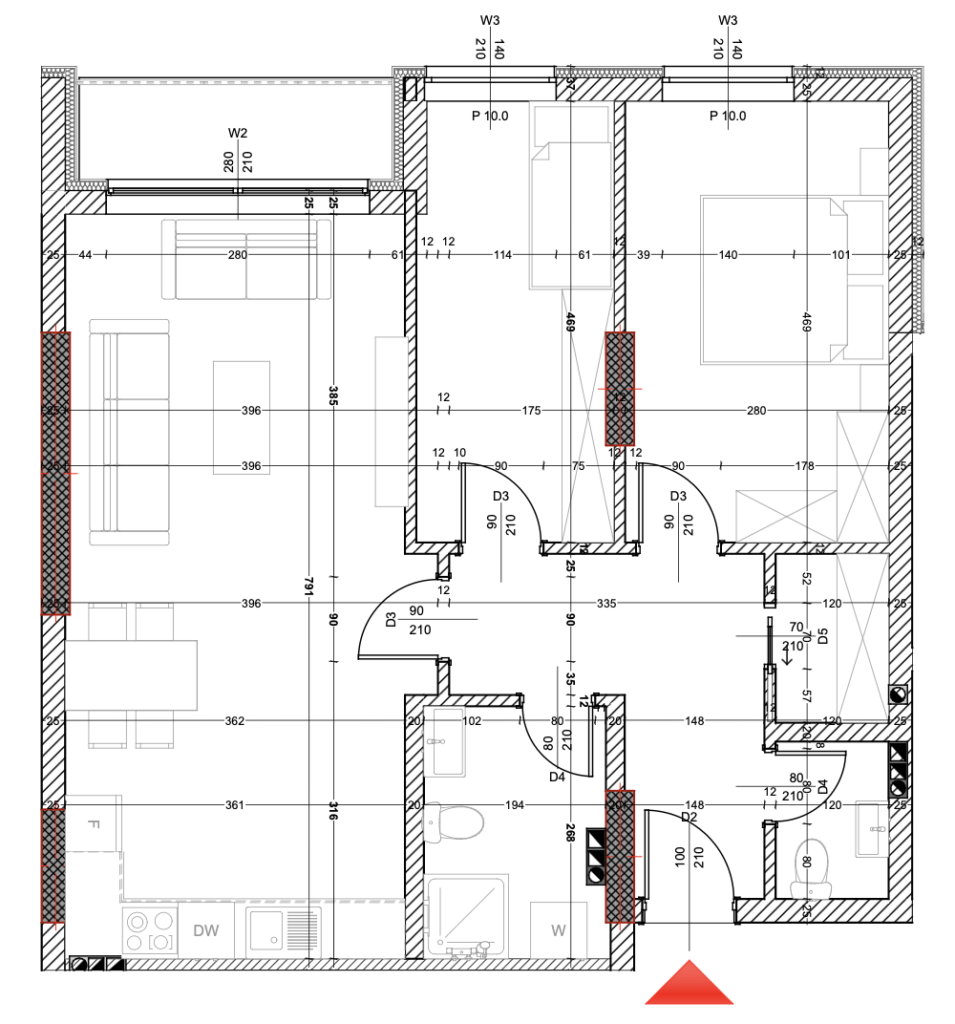
🏢 Në shitje
Lamella B – Banesa B4
🏗️ Kati karakteristik: 1
Të dhënat
Lamella
B
Banesa
B4
Kati
1
Sipërfaqe Bruto
86.252 m²
Përbërja e banesës
Korridor
WC
Banjo
Depo
Kuzhinë
Qëndrim ditor
Dhoma gjumi 1
Dhoma gjumi 2
Ballkon
