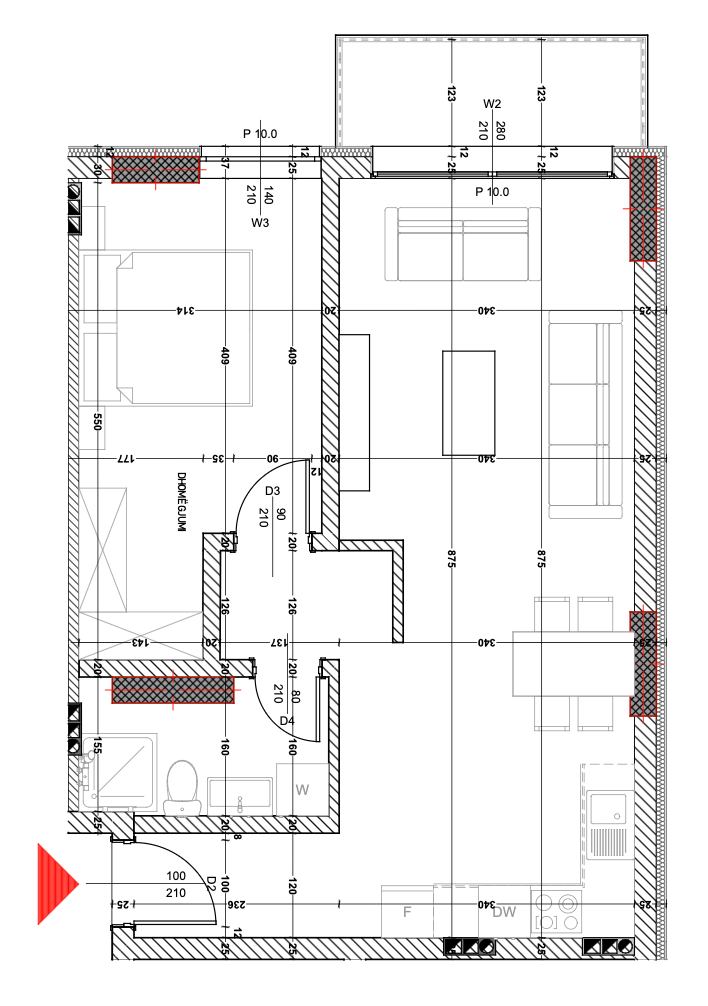
🏢 Në shitje
Lamella C – Banesa C8
🏗️ Kati karakteristik: 2, 3, 4, 5
Të dhënat
Lamella
C
Banesa
C8
Kati
2–5
Sipërfaqe Bruto
67.347 m²
Përbërja e banesës
Korridor
Banjo
Kuzhinë
Qëndrim ditor
Dhoma gjumi
Ballkon
