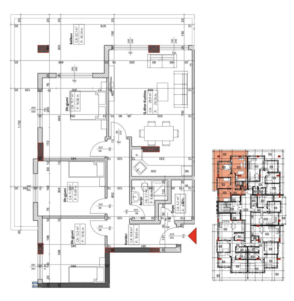
🏙️ Penthouse • Në shitje
Penthouse – Lamela A, Banesa 5
🌇 Kati karakteristik: 6 • Rezidencë premium
Të dhënat
Lamela
A
Banesa
5 (Penthouse)
Kati
6
Sipërfaqe Bruto
137.9 m²
Përbërja e banesës
Korridor
Banjo
Depo
Kuzhinë
Qëndrim ditor
Dhoma gjumi 1
Dhoma gjumi 2
Dhoma gjumi 3
Terasë
