🏢 Në shitje
Lamela A – Banesa 1
🏠 Banesë familjare funksionale • 📋 Karakteristika: 1 deri 10
Përshkrimi
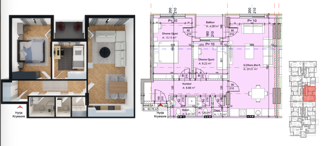
Kjo banesë në Lamela A – Banesa 1 ofron një organizim praktik dhe të balancuar të hapësirës,
me ndarje funksionale mes zonës së ditës dhe dhomave të gjumit.
Ideale për familje ose investim afatgjatë, banesa garanton rehati,
ndriçim natyral dhe shfrytëzim optimal të çdo metri katror.
me ndarje funksionale mes zonës së ditës dhe dhomave të gjumit.
Ideale për familje ose investim afatgjatë, banesa garanton rehati,
ndriçim natyral dhe shfrytëzim optimal të çdo metri katror.
Kontakt
Të dhënat
Lamela
A
Banesa
1
Sipërfaqe Bruto
83.78 m²
Sipërfaqe Neto
72.65 m²
Përbërja e banesës
Korridor
Banjo
WC
Depo
Kuzhinë
Qëndrim ditor
Dhoma e prindërve
Dhomë gjumi
Ballkon
Çmimi: Me marrëveshje
