🏢 Në shitje
Lamela B – Banesa 2
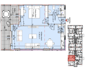
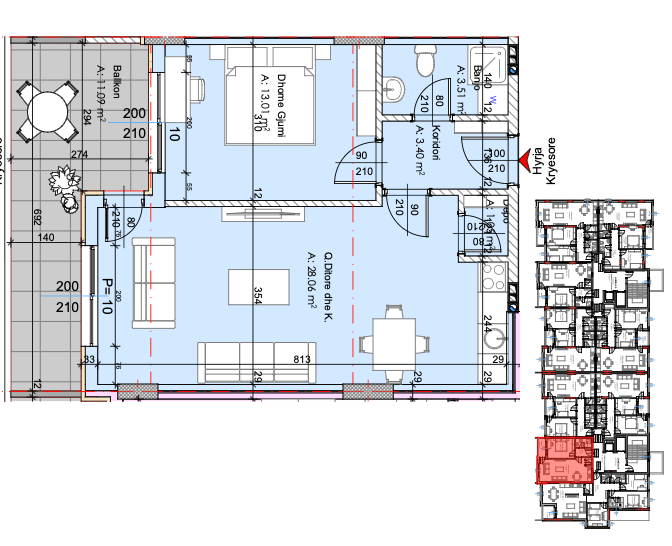
🏠 Banesë kompakte me terasë • 📋 Karakteristika: 1
Përshkrimi
Kjo banesë në Lamela B – Banesa 2 është një zgjedhje ideale për çifte, individë ose investim.
Hapësira e brendshme është e organizuar në mënyrë funksionale, ndërsa terasa ofron një ambient
shtesë për relaks dhe ndriçim natyral gjatë gjithë ditës.
Hapësira e brendshme është e organizuar në mënyrë funksionale, ndërsa terasa ofron një ambient
shtesë për relaks dhe ndriçim natyral gjatë gjithë ditës.
Të dhënat
Lamela
B
Banesa
2
Sipërfaqe Bruto
60.64 m²
Sipërfaqe Neto
52.82 m²
Sipërfaqe Terase (Bruto)
11.09 m²
Sipërfaqe Totale (Bruto)
71.73 m²
Përbërja e banesës
Korridor
Banjo
Depo
Kuzhinë
Qëndrim ditor
Dhoma e prindërve
Ballkon / Terasë
