🏢 Në shitje
Lamela B – Banesa 2
🏠 Banesë funksionale • 📋 Karakteristika: 2 deri 10
Përshkrimi
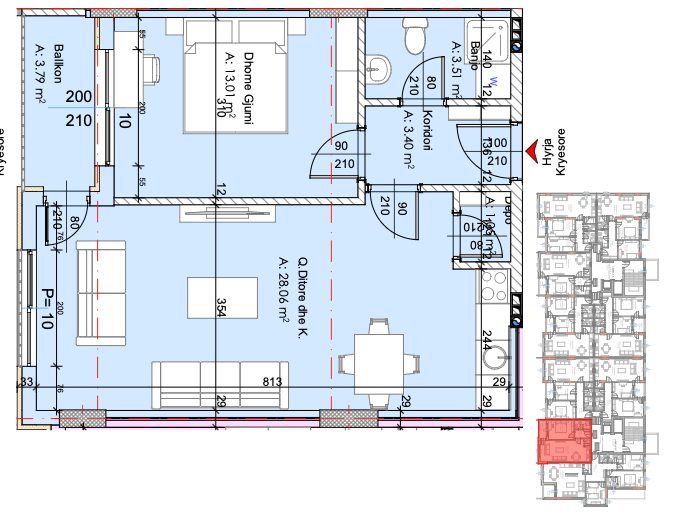
Banesa në Lamela B – Banesa 2 ofron një organizim praktik dhe të rehatshëm për jetesë moderne.
Zona e ditës është e lidhur në mënyrë funksionale me kuzhinën dhe ballkonin, duke krijuar një ambient të ndriçuar dhe komod,
ideal për çifte apo familje të vogla.
Zona e ditës është e lidhur në mënyrë funksionale me kuzhinën dhe ballkonin, duke krijuar një ambient të ndriçuar dhe komod,
ideal për çifte apo familje të vogla.
Të dhënat
Lamela
B
Banesa
2
Sipërfaqe Bruto
60.64 m²
Sipërfaqe Neto
52.82 m²
Përbërja e banesës
Korridor
Banjo
Depo
Kuzhinë
Qëndrim ditor
Dhoma e prindërve
Ballkon
