🏢 Në shitje
Lamela B – Banesa 3
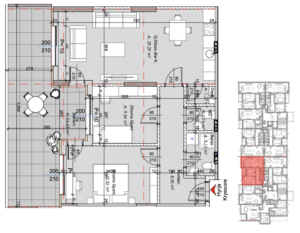
🏠 Banesë me terasë të madhe • 📋 Karakteristika: 1
Përshkrimi
Kjo banesë në Lamela B – Banesa 3 dallohet për terasën e saj të gjerë, ideale për relaks,
aktivitete familjare ose ambient të jashtëm privat.
Organizimi funksional i brendshëm ofron ndarje të qartë mes zonës së ditës dhe hapësirave të gjumit,
duke e bërë këtë banesë një zgjedhje të shkëlqyer si për jetesë ashtu edhe për investim.
aktivitete familjare ose ambient të jashtëm privat.
Organizimi funksional i brendshëm ofron ndarje të qartë mes zonës së ditës dhe hapësirave të gjumit,
duke e bërë këtë banesë një zgjedhje të shkëlqyer si për jetesë ashtu edhe për investim.
Të dhënat
Lamela
B
Banesa
3
Sipërfaqe Bruto
79.97 m²
Sipërfaqe Neto
69.96 m²
Sipërfaqe Terase (Bruto)
26.63 m²
Sipërfaqe Totale (Bruto)
106.60 m²
Përbërja e banesës
Korridor
Banjo
WC
Depo
Kuzhinë
Qëndrim ditor
Dhoma e prindërve
Dhomë gjumi
Ballkon / Terasë
