kërko
Filtro
Lloji
Të gjitha
Banesë
Lokal
Zgjidhni specifikat
Renditja
Të rekomanduara
Më të rinjtë
Më të kërkuarat
Shiko të gjitha
Shiko të gjitha
1
/
5
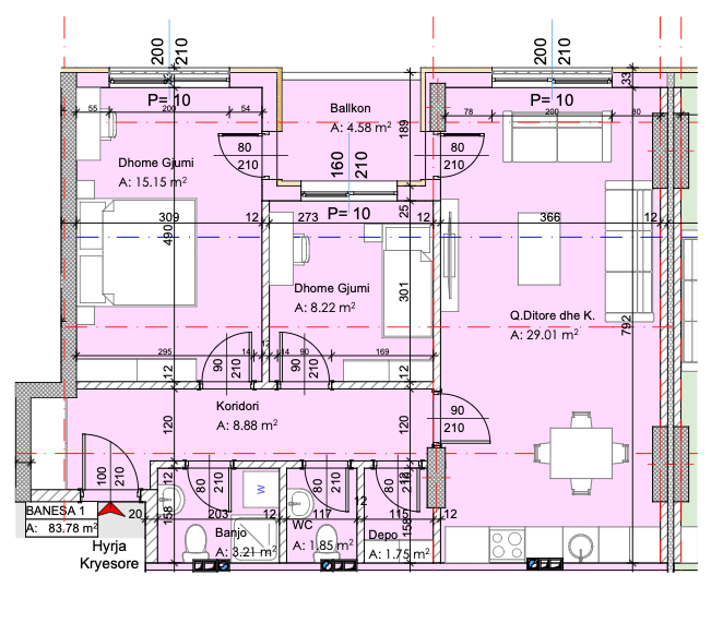
🏢 Në shitje
Lamela A – Banesa 1
📋 Karakteristika: 1 deri 10
📐 Bruto 83.78 m²
📐 Neto 72.65 m²
Të dhënat
Lamela
A
Banesa
Banesa 1
Sipërfaqe Bruto
83.78 m²
Sipërfaqe Neto
72.65 m²
Përbërja e banesës
Korridor
Banjo
WC
Depo
Kuzhinë dhe Qëndrim Ditor
Ballkon
Dhoma e prindërve
Dhomë gjumi