
Shiten banesat në Vushtrri.

Kompleksi Vicianum Residence.

Invesitori: Lutriel Invest Sh.P.K.

Rruga: Ajet Gërguri, Vushtrri 40000.
Të dhënat:

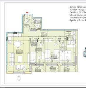
Banesa 4, kati 4.

Banesa me sipërfaqe 99.01m2.

Qendrim ditor+Kuzhinë+depo+ballkon, 3 dhoma gjumi me ballkona, 2 Banjo.
Bleni banesë, investoni në lumturinë e familjës tuaj!
Çmimi me marrëveshje, kontakt:

+ 383 45 201 501 ( Viber, WhatsAp)

+ 383 44 264 939 ( Viber, WhatsAp)